RAVLIK@INMOR.COM
КАТАЛОГ ПРОДУКЦИИ
- 01 Пожарные соединительные головки
-
01 Пожарные стволы
-
01 Пожарные распылители
- 03 Клапана пожарные
-
04 Пожарные разветвления рукавные выпускные
-
04 Пожарные головки и фланцы
-
06 Пожарная арматура зданий
- 12 Пожарный генератор пены
- 20 Судовые и промышленные клапана
- 20 Судовые и промышленные мембранные клапана
- 20 Клапана запорные резьбовые
- 21 Судовые захлопки и невозвратные клапана
- 22 Судовые отливные бортовые клапана
- 23 Предохранительные клапана
- 26 Быстрозапорные клапана
- 26 Клапаны самозапорные
- 27 Клапаны высокого давления
- 29 Клапаны различные специальные
- 30 Судовые и промышленные фильтры
- 35 Судовые и промышленные задвижки
- 40 Судовые и промышленные краны
- 45 Судовые и промышленные редукционные клапаны
- 45 Манометровые краны
- 50 Судовые затворы и захлопки
- 55 Пробки палубные
- 60 Арматура указателя уровня жидкости
-
81 Элементы управления арматурой
- 82 Фланцы
- 85 Адаптеры
-
86 Виброопоры и демпферы
-
87 Автоматические высокоскоростные клапаны вакуума и давления
-
Справочная информация
-
88 Интеллектуальные морские системы
- 89 Сепараторы масла и топлива МАВ
-
90 Испытания амортизаторов
Наша задача
Выполнение заказов в указанные сроки и с высоким качеством!Наша цель
Cпособствовать внедрению современного и надёжного оборудования лидирующих отечественных и мировых производителей.82 Фланцы
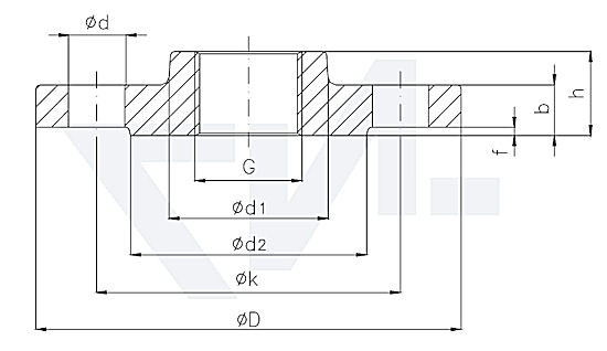
Фланец резьбовой с выступом DIN 2566 PN16 тип 82.05.04
Фланец резьбовой с выступом по DIN 2566, PN16, тип 82.05.04
Спецификация материалов:
|
Материал в соответствии с DIN |
Материал в соответствии с BS |
|
G-AlSi10 Mg |
--- |
|
CuSn5Zn5Pb5-C |
B.S.1400:1961 LG 2-C |
|
CuSn10-C |
B.S.1400:1961 PB 4-C |

Таблица размеров:
|
DN |
G'' |
Ø D |
Ø d1 |
Ø d2 |
b |
Ø k x n x Ø d |
h |
f |
вес, алюминий |
вес, бронза |
|
15 |
R 1/2" |
95 |
35 |
45 |
14 |
65 x 4 x 14 |
20 |
2 |
0,23 |
0,67 |
|
20 |
R 3/4" |
105 |
45 |
58 |
16 |
75 x 4 x 14 |
24 |
2 |
0,33 |
0,98 |
|
25 |
R 1" |
115 |
52 |
68 |
16 |
85 x 4 x 14 |
24 |
2 |
0,40 |
1,19 |
|
32 |
R 1 1/4" |
140 |
60 |
78 |
16 |
100x 4x 18 |
26 |
2 |
0,58 |
1,73 |
|
40 |
R 1 1/2" |
150 |
70 |
88 |
16 |
110 x 4 x 18 |
26 |
3 |
0,64 |
1,93 |
|
50 |
R 2" |
165 |
85 |
102 |
18 |
125x4x18 |
28 |
3 |
0,87 |
2,63 |
|
65 |
R 2 1/2" |
185 |
105 |
122 |
18 |
145 x 4 x 18 |
32 |
3 |
1,14 |
3,44 |
|
80 |
R 3" |
200 |
118 |
138 |
20 |
160 x 8 x18 |
34 |
3 |
1,48 |
4,45 |
|
100 |
R 4" |
220 |
140 |
158 |
20 |
180 x 8 x18 |
38 |
3 |
1,61 |
4,83 |
|
125 |
R 5" |
250 |
168 |
188 |
22 |
210 x 8 x18 |
40 |
3 |
2,20 |
6,62 |
|
150 |
R 6" |
285 |
195 |
212 |
22 |
240 x 8 x 22 |
44 |
3 |
2,85 |
8,56 |
|
175 |
R 7" |
315 |
222 |
242 |
24 |
270 x 8 x 22 |
45 |
3 |
3,84 |
11,52 |
|
200 |
R 8" |
340 |
250 |
268 |
24 |
295 x 8 x 22 |
46 |
3 |
4,41 |
13,44 |
Компания ИНМОР:
тел: (812) 33 33 389
факс: (812) 33 33 389 доб.0
